![拱板與山墻安裝節點圖]()
拱板與山墻安裝節點圖
江蘇杰達鋼結構工程有司今天給大家帶來18張拱形屋頂節點詳圖,下圖是拱板與山墻安裝節點。...
![普通單跨拱形屋頂安裝節點]()
普通單跨拱形屋頂安裝節點
江蘇杰達鋼結構工程有司今天給大家帶來18張拱形屋頂節點詳圖,下圖是普通單跨拱形屋頂安裝節點。...
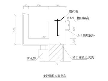
![單跨拱板安裝節點適用于工業廠房]()
單跨拱板安裝節點適用于工業廠房
江蘇杰達鋼結構工程有司今天給大家帶來18張拱形屋頂節點詳圖,下圖是單跨拱板安裝節點(工業廠房)...
![磚混結構單跨拱板安裝節點圖]()
磚混結構單跨拱板安裝節點圖
江蘇杰達鋼結構工程有司今天給大家帶來18張拱形屋頂節點詳圖,下圖是磚混結構單跨拱板安裝節點(帶落水管)...
![U型連跨拱板安裝節點圖]()
U型連跨拱板安裝節點圖
江蘇杰達鋼結構工程有限公司今天給大家帶來18張拱形屋頂節點詳圖,下圖是U型連跨拱板安裝節點...
![H型連跨拱板安裝節點圖]()
H型連跨拱板安裝節點圖
江蘇杰達鋼結構工程有限公司今天給大家帶來18張拱形屋頂節點詳圖,下圖是H型連跨拱板安裝節點...
![常規情況下拱形屋頂的設計要求]()
常規情況下拱形屋頂的設計要求
本文介紹了《CECS167:2004拱形波紋鋼屋蓋結構技術規程》中關于拱形波紋鋼屋蓋結構的設計與施工要求,涵蓋基板厚度、荷載計算、彩涂板性能、連接方式及施工質量等方面的規范,為相關工程設計與施工提供參考。基板厚度及設計計算拱形波紋鋼屋蓋結構的基板厚度須通過計算確定,且不得小于0.8毫米。供貨時基板厚度允許的負偏差不超過3%,設計時應考慮負偏差帶來的影響。...
![拱形屋頂設計中的關鍵荷載考慮]()
拱形屋頂設計中的關鍵荷載考慮
在鋼結構設計中,合理計算和考慮各種荷載對保證建筑安全和穩定性至關重要。設計梁、柱及基礎時,不僅要考慮結構自重,還需結合風載、雪載、保溫層重量、積灰、燈具和吊頂等多種附加荷載,確保結構能夠承受多種復雜工況帶來的壓力。首先,風載是影響建筑結構的重要外部荷載之一。不同地區因地理位置和氣候差異,風速和風壓有較大差異,設計時必須依據當地的氣象資料和國家標準規范合理選取...
![拱形屋頂必要的設計條件]()
拱形屋頂必要的設計條件
拱形彩板屋面設計時,需要充分考慮各種外力對結構的影響,以確保建筑的安全性和穩定性。不同地區的風載、雪載、地震荷載、自重及附加荷載等,應根據當地氣候和規范進行合理選取和計算。以北京地區為例,設計時應綜合考慮風載、雪載、地震荷載、自重、...
![常規情況下的拱形屋頂設計順序]()
常規情況下的拱形屋頂設計順序
本文介紹了拱形屋頂設計的基本流程和關鍵環節,幫助理解施工中各方協作的重要步驟及技術配合要點。拱形屋頂設計流程解析設計單位或總包單位在決定采用拱形彩板屋面后,相關技術部門需根據設計要求,提供必要的技術資料和咨詢服務,確保設計的順利開展和合作的順暢。...
![杰達拱形屋頂的技術參數]()
杰達拱形屋頂的技術參數
一、拱形屋頂跨度板厚對照表跨度...
![杰達拱形屋頂的技術優勢]()
杰達拱形屋頂的技術優勢
施工速度快——壹天時間建筑面積可達1000平方米,在必要時,還可將建好的彩色鋼板拱型屋頂開封,搬至異地重建。 屋頂質量好——屋面使用ACMRSAP軟件設計,采用鉸結方式連接,實現永久性防水,免維護年限可達20年以上。 ...
